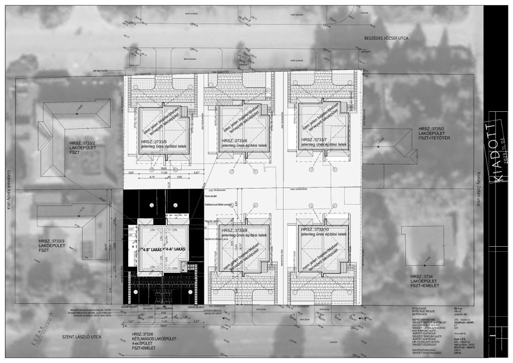
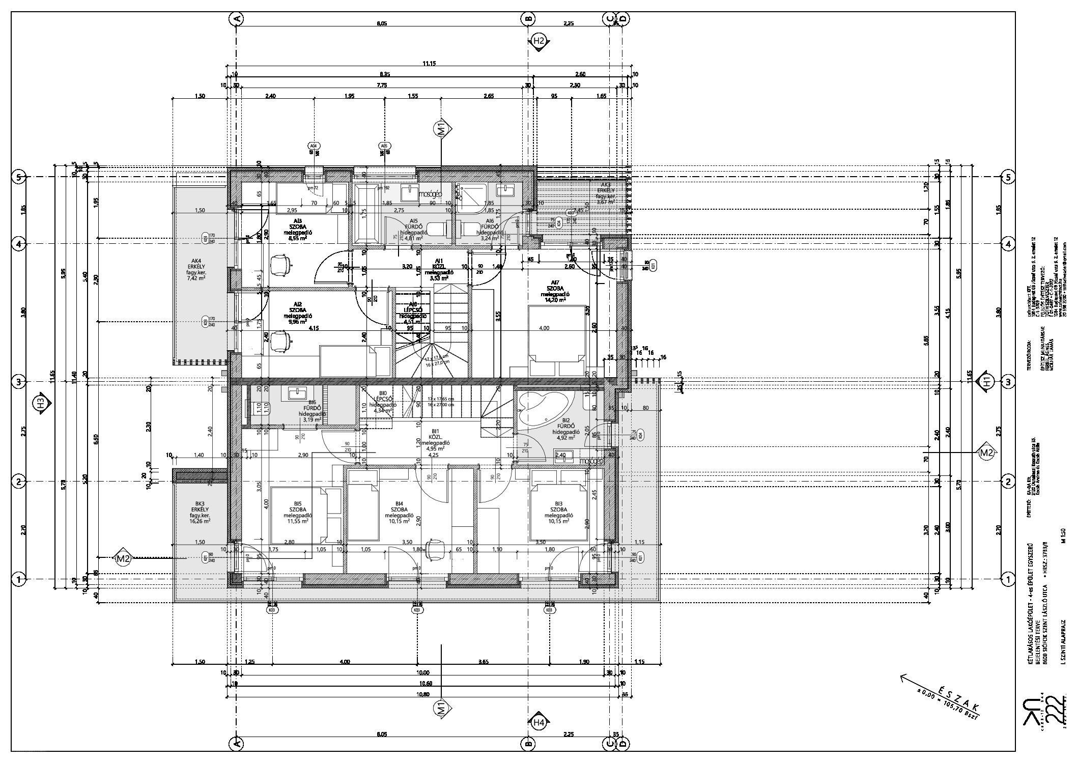
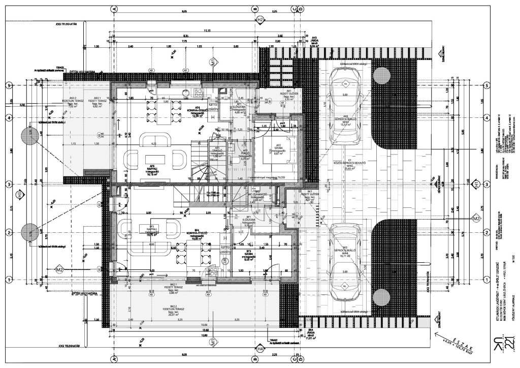
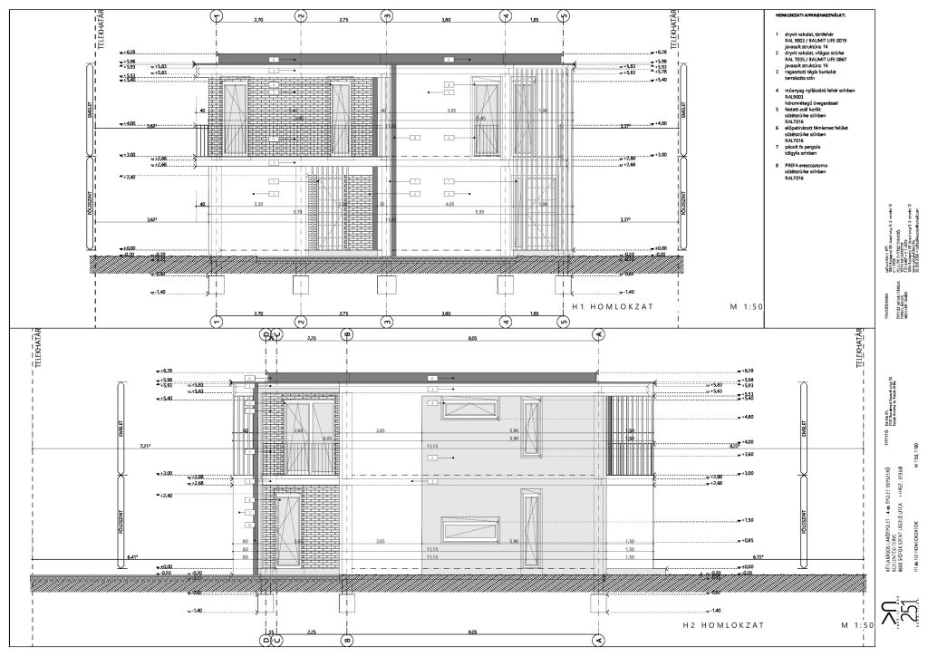
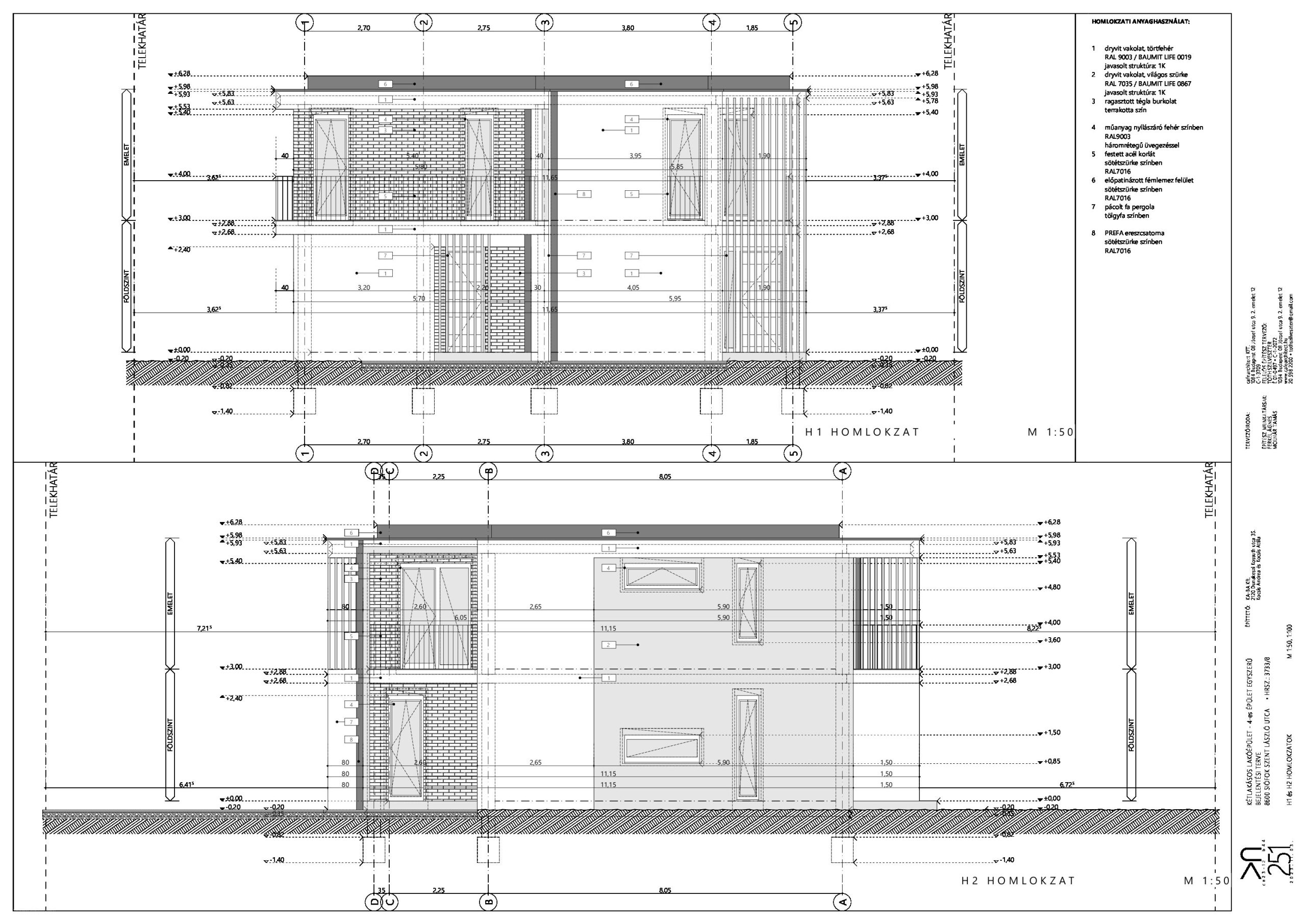
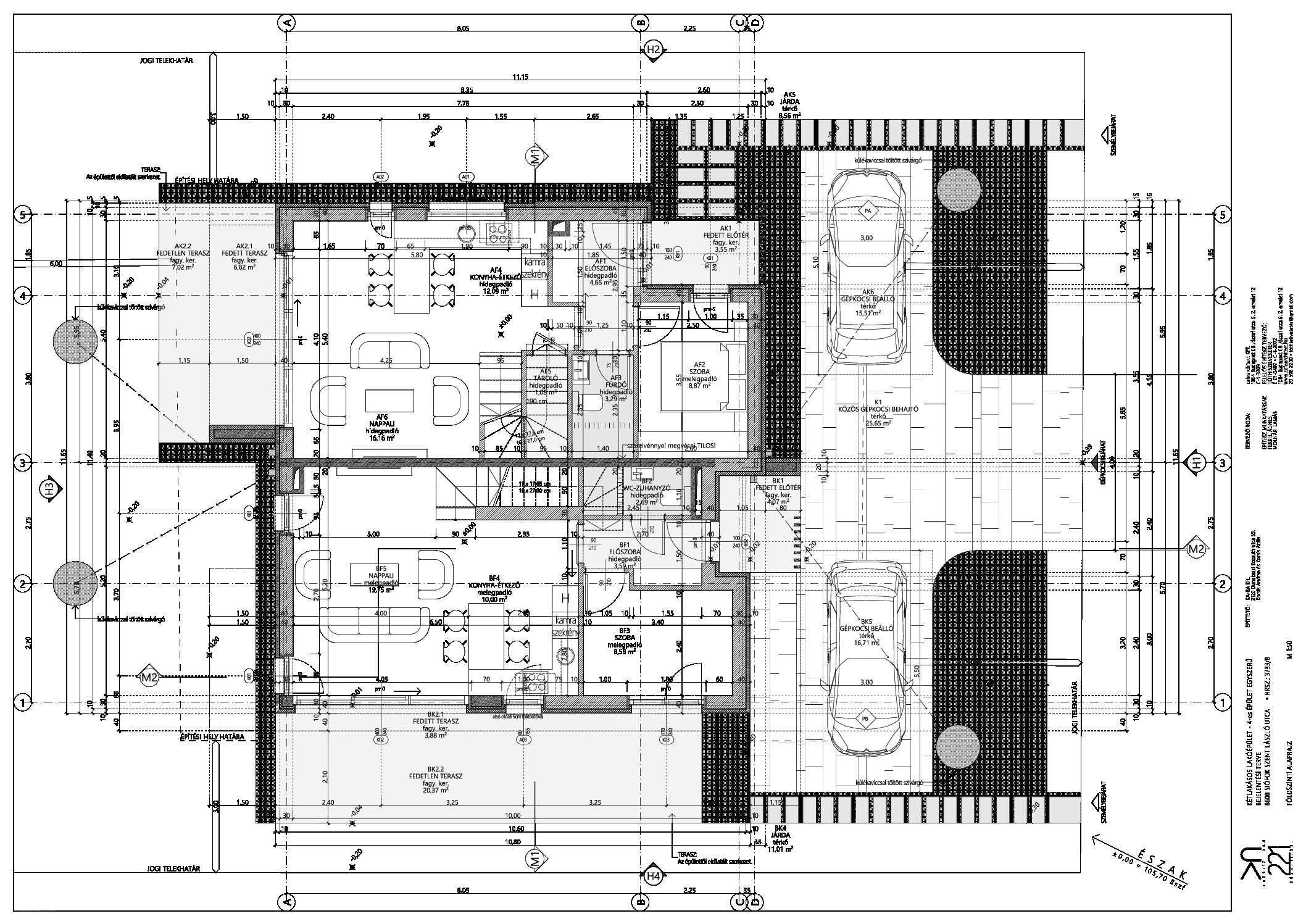
8-as ház

Szent László u. 157. – Hrsz: 3733/8