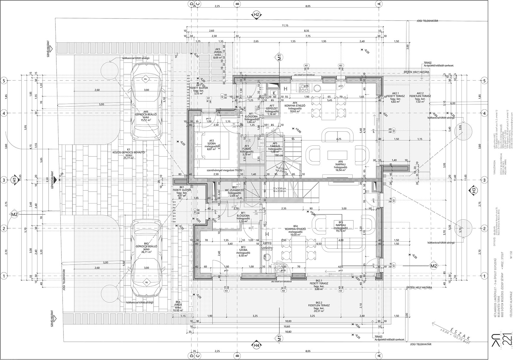
7-es ház

Szent László u. 157. – Hrsz: 3733/7

Egyéb dokumentumok: